Ножничный компактный подъемник WiederKraft WDK-505X, который предназначен для работы на полу без специализированных углублений. Стопорный механизм управляется пневматически. Грузоподъемность подъемника в 3500 кг позволяет комфортно взаимодействовать с большинством автомобилей во время ремонта, а двойной привод цилиндров отвечает за плавный подъем и спуск. Безопасность механизма достигается за счет скрытых систем гидро- и электропроводки, что не только предохраняет сам подъемник, но и работающего с ним механика. В данной модели улучшена гидравлическая система – можно равномерно управлять подъемом платформы с помощью автоматической системы синхронизации (синхронизация компенсируется кнопкой). Подъемник оснащен автоматическими ограничителями высоты подъема.
Особенности и преимущества:
- Отличается компактной конструкцией и предназначен для монтажа на поверхности пола без углублений;
- Двойной гидравлический привод обеспечивает плавность механизма;
- Удаленное управление подъемником с помощью пульта;
- Возможность пневматически разблокировать системы;
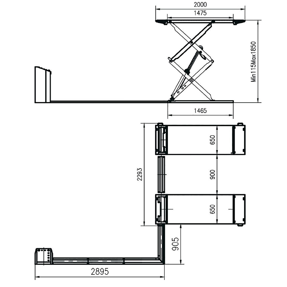
- Максимальная высота в 1,9 м гарантирует комфортную работу с автомобилем, в то время как механизм автоматического ограничения высоты сделает ее безопасной;
- Система самосмазывающихся подшипников;
- Полностью скрытая электро- и гидропроводка;
- Увеличенная ширина подъемных платформ 650 мм (на 5% шире аналогов);
- Универсальное применение — благодаря максимальной высоте в 1900 мм можно удобно осуществлять любые необходимые работы с авто.
Комплектация:
- Ножничный подъемник WDK-505X — 1 шт.
- Пульт управления с гидростанцией — 1 шт.
| Грузоподъемность: |
3,5 т |
|---|---|
| Высота подхвата: |
110 мм |
| Высота подъема: |
1900 мм |
| Время подъема: |
50 сек |
| Длина платформы: |
2000 мм |
| Ширина платформ: |
650 мм |
| Расстояние между стойками: |
900 мм |
| Общая потребляемая мощность: |
2,2 кВт |
| Подключение: |
380 В |
| Габариты упаковки: |
2150 x 760 x 400 мм, 540 x 540 x 1080 мм |
| Вес: |
876 кг |
